VB_Immo_MA_Team0475_kompo1

Baugrundstück in innerstädtischer Lage von Eckernförde

Objektart
Grundstück
Objekttyp
Gemischt
Vermarktungsart
Kauf
PLZ
24340
Ort
Eckernförde
externe Objnr
1.1782
Grundstück
566 m²
Kaufpreis
1.650.000 €
Energieausweis gültig bis
0000-00-00
Provision
7,14 % des Gesamtkaufpreises inkl. der gesetzlichen Umsatzsteuer

Beschreibung

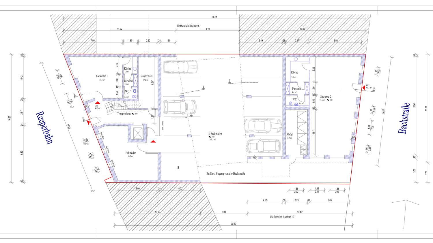
Dieses erstklassige Baugrundstück bietet die Möglichkeit zur Errichtung eines modernen Wohn- und Geschäftshauses mit insgesamt 9 Wohneinheiten und 2 Gewerbeeinheiten. Die Gesamtwohn- und Nutzfläche beträgt rund 880 m², wobei ca. 748 m² für Wohnzwecke und ca. 132 m² für gewerbliche Nutzung vorgesehen sind. Zusätzlich stehen 10 Stellplätze zur Verfügung, die den zukünftigen Bewohnern und Gewerbetreibenden zugutekommen. Eine gültige Baugenehmigung liegt bereits vor, was den Bauprozess erheblich vereinfacht. Nutzen Sie diese attraktive Gelegenheit, um in einer gefragten Lage zu investieren und sowohl Wohn- als auch Gewerberaum zu schaffen.

Lage

Das Grundstück befindet sich in zentraler Innenstadtlage von Eckernförde.

Einkaufsmöglichkeiten, Ärzte, Schulen und der Bahnhof sind in wenigen Minuten zu Fuß erreichbar. Auch die Fußgängerzone mit ihren Geschäften sowie der Hafen mit Restaurants und Cafés liegen nur einen kurzen Spaziergang entfernt. Der Strand sowie das Meerwasser-Wellenbad und der Kurpark bieten vielfältige Freizeit- und Erholungsmöglichkeiten und sind ebenfalls fußläufig erreichbar.

Dank der Nähe zum Bahnhof sowie den Bundesstraßen B 76 und B 203 besteht eine hervorragende Anbindung an Kiel, Flensburg und die Autobahn A 7.

Die Lage verbindet damit die Vorteile des städtischen Lebens mit der Nähe zur Natur und zur Ostsee - ein idealer Standort zum Wohnen, Arbeiten und Erholen.

Vorname:
Name:
Strasse:
Plz:
Ort:
Telefonnummern:
E-Mail:
Nachricht:


Ihr Ansprechpartner


Telefonnummer
0431 9802-2600


Straße
Europaplatz 4


Ort
24103 Kiel


Seiten: 1